Beacon Place
Worcester, MA

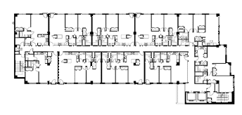
Sited parallel to Madison Street, Beacon Place Condominiums is a combination affordable / market rate, new construction development. The building is eight stories high, steel framed, with brick cladding. The major walls of the building face east and west so all units receive sunlight.

The units feature generous, L-shaped kitchens with islands, stone counters and hardwood cabinets. HVAC is based on the AquaTherm System, a recent design that utilizes an oversized water heater to provide heating, thus eliminating the need for a boiler and saving both cost and space. Each unit also has a French balcony with a full-vision glass door which allows in more natural light and opens up the room significantly.

The building is clad in three shades of brick: a beige brick covering the first two layers to form a base, a traditional red new England brick for the main field of the building, and large accent blocks in an orange/rust shade. This combination of elements provides scale for the building at grade and breaks up the long, horizontal mass.

Services:
Programming
Full Service A/E Design